Casa Zaki es una vivienda construida a principio de la década de los 50”durante el siglo pasado, en un sector consolidado de Santiago. Presenta tres etapas de ejecución: Primero la vivienda original que se sitúa como una vivienda aislada en el terreno; Segundo, una ampliación que incluye dos dormitorios en primer nivel y, tercero, una segunda ampliación destinada al servicio de la vivienda principal.
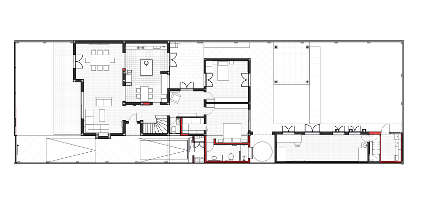
Respecto a la distribución de los espacios existentes, el diseño original representa la época en su forma de habitar, cada recinto está separado mediante puertas y/o pasillos, dificultando la integración de los espacios y la flexibilidad de uso y ocupación.
El encargo consiste por una parte en la remodelación de la casa existente y su primera ampliación, que incluye el diseño de la cocina, baños y dormitorio principal, además de cada uno de los recintos existentes de la casa. Y por otra parte la remodelación del área de servicio que se concibe como un nuevo espacio de trabajo.
La idea del proyecto es por una parte organizar la vivienda entorno al espacio de la cocina y por otra, que cada uno de los volúmenes ya construidos tengan acceso y vinculo con el patio posterior. El principal espacio verde de la vivienda.
Architect: Pablo Durán
Construction: Constructora Bas
Date: 2018
M2: 190
Location: Santiago, Región Metropolitana.
Constructive Material and System: Steel, Wood and finishings.




























